4-und MehrzimmerWohung zu Verkauf in Settimo Milanese

Settimo Milanese - via sturzo, 3
200.000 €
Objekt-Nr.:VMI-STURZO 3
Hauptmerkmale
155
4
Räume
3
die Zimmer
2
Badezimmer
Beschreibung
Eigenschaften
Objekt-Nr.:
VMI-STURZO 3
Gemeinde:
Settimo Milanese
Kategorie:
4-und MehrzimmerWohung
Räume:
4
die Zimmer:
3
Badezimmer:
2
qm:
155
Etage:
1
Energieklasse:
D
Zustand Immobilie:
gut
Gesamteindruck:
mittelmäßig
Freie Seiten:
3
Wohnraum-Typologie:
Wohnzimmer
Küche:
offene Küche
Kühlung:
Teilt
Türen / Fenster:
sehr gut
Boden Wohnraum:
Parkett
Boden Zimmer:
Parkett
Boden Küche:
Parkett
Boden Bad:
Fliesen
die Zubehöre
Klimaanlage
Schrank
Aufzug
Wäscherei
Sicherheitstür
Datennetzwerk
Kleiderschrank
der Lageplan
Settimo Milanese - via sturzo, 3
Bitte aktivieren Sie Cookies und laden Sie die Seite neu, um den Inhalt anzuzeigen.
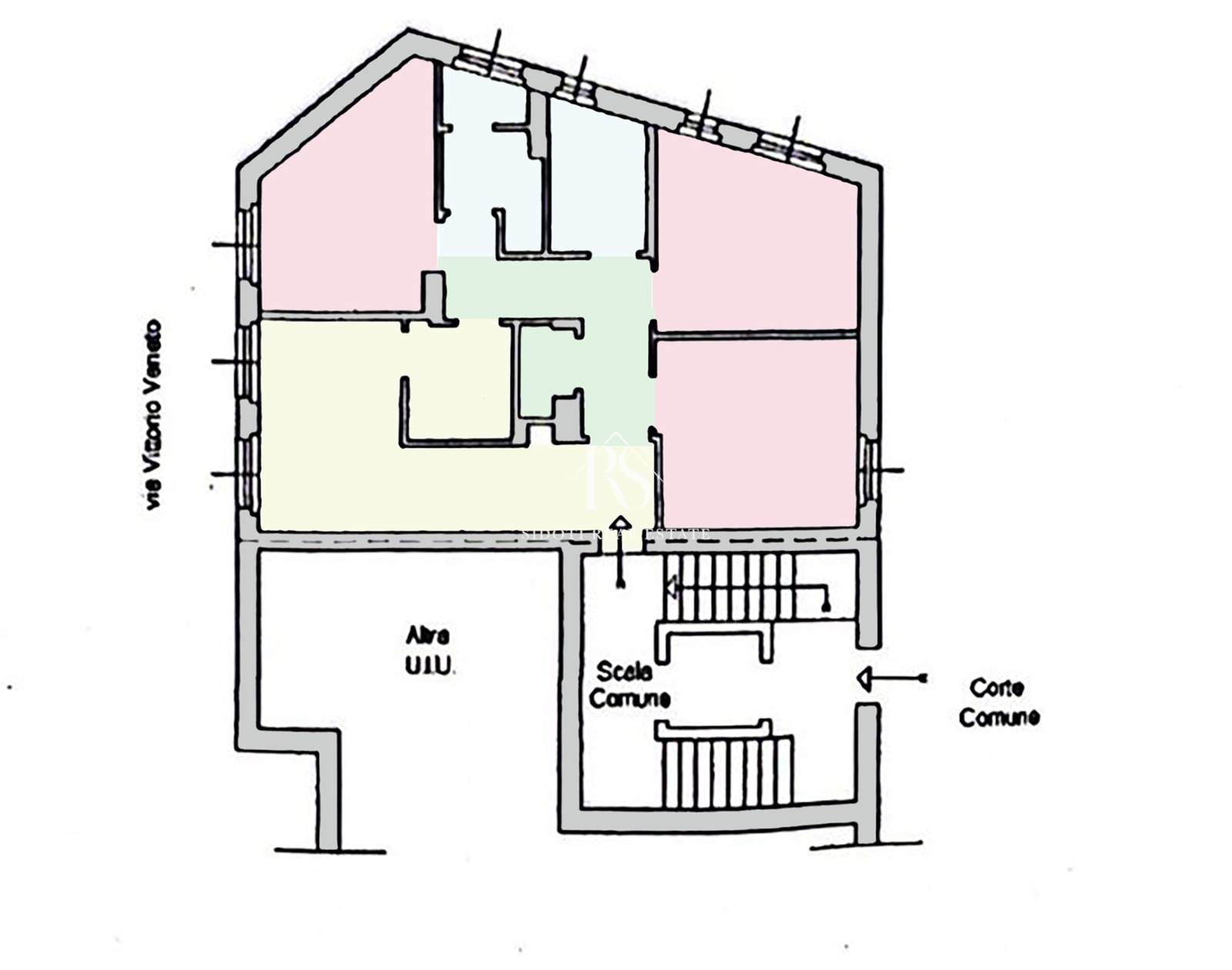
Grundrisse
Sitz von Milano
Viale Andrea Doria, 35
20124 Milano (MI)

Telefon 02 36638944
Mobiltelefon 351 3021331
Immobilienmakler
Rosario	 Sidoti Carrello
Rosario Sidoti Carrello
Besuchen Sie die Anzeige auf Ihrem Telefon
QR Code
Möchten Sie weitere Details?
Cookie preference