BILOCALE CON TERRAZZO

Pioltello - VIA NORBERTO BOBBIO, 5
1.100 €
Codice:API -BOSCO123
Caratteristiche principali
74
2
Locali
1
Camere
1
Bagni
Descrizione
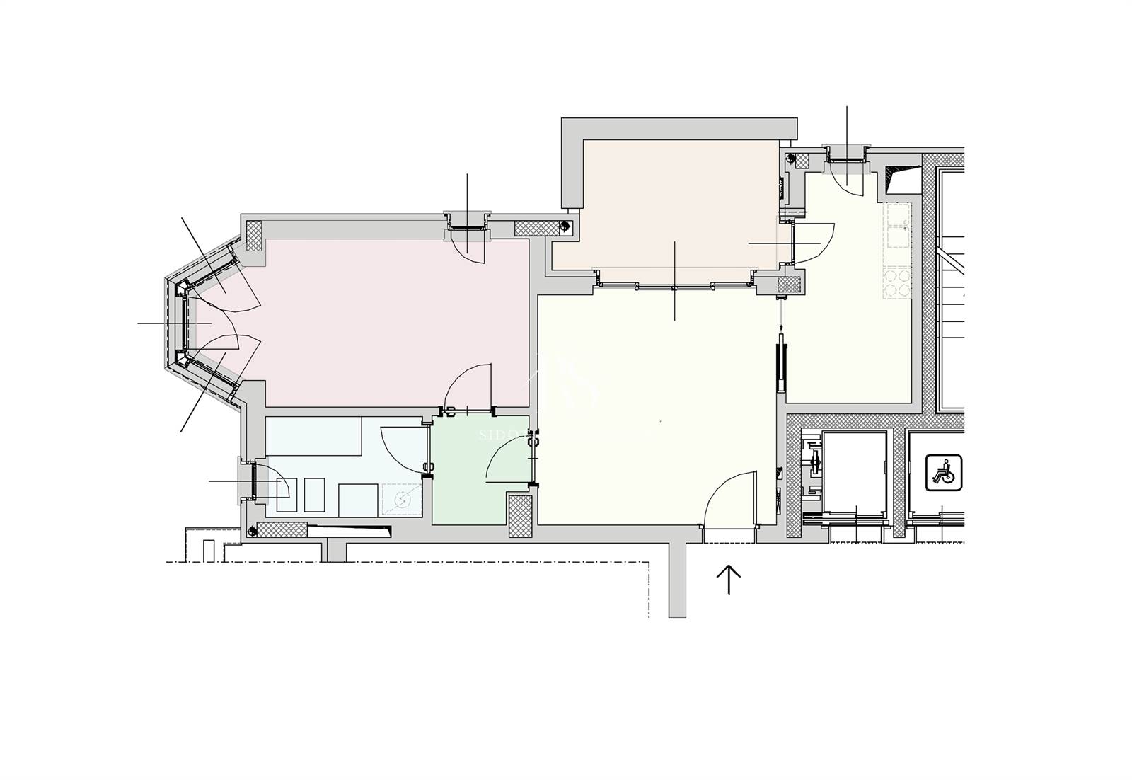
All’interno dell’esclusiva Residenza Malaspina, in zona San Felice, proponiamo bilocale arredato in affitto, ideale per single o coppie. L’immobile è composto da: Luminoso soggiorno con cucina separata e accesso al terrazzo, camera matrimoniale, Bagno finestrato .
L' appartamento è costruito con materiali moderni e di qualità, le soluzioni impiantistiche sono di ultima generazione con dotazioni base di domotica e possibilità di controllo remoto per comandi e invio allarme tramite telefono e PC. All'interno del complesso sporting club ad uso esclusivo dei condomini con servizi quali: piscina, campi sportivi, palestra, sala biliardo e sala relax oltre a bar/ristorante. L' appartamento è costruito con materiali moderni e di qualità con soluzioni impiantistiche di ultima generazione e con dotazioni base di domotica pronte ad accogliere il futuro delle comunicazioni. L'impianto di teleriscaldamento e teleraffrescamento, l'automazione comando luci ed avvolgibili, la rete interna multimediale (dati, fonia, TV via cavo in ogni ambiente), controllo remoto (comandi e invio allarme tramite telefono e PC), il videocitofono digitale, l'impianto TV centralizzato con segnali terrestri e satellitari, l'allarme anti intrusione collegato alla control room della vigilanza, l'allarme antipanico ed il rilevatore fughe gas diventano strumenti di sicurezza e tecnologia al servizio del benessere. Le metrature, la planimetria ed i dati degli immobili quì pubblicati sono del tutto indicativi non costituiscono elemento contrattuale.
Caratteristiche
Codice:
API -BOSCO123
Città:
Pioltello
Categoria:
2 locali
Spese condominiali:
4.200 € / anno
Locali:
2
Camere:
1
Bagni:
1
Mq:
74
Terrazzi:
1
Classe energetica:
A
Life Style:
Quiet
Stato Immobile:
Ristrutturato
Panorama:
Vista Giardino
Lati Liberi:
2
Giardino:
Comune
Arredi:
Arredato
Tipo Soggiorno:
Soggiorno
Tipo Cucina:
Semi Abitabile
Riscaldamento:
Centralizzato
Tipo Riscaldam.:
Tele Riscaldamento
Raffrescamento:
Centralizzato
Infissi:
PVC Doppio Vetro
Pavim. Giorno:
Parquet
Pavim. Notte:
Parquet
Pavim. Bagno:
Gres Porcellanato
Accessori
Aria Condizionata
Armadio a Muro
Ascensore
Doppi Vetri
Fibra Ottica
Impianto Domotica
Impianto Satellitare
Parco Condominiale
Piscina
Porta Blindata
Portineria/Custode
Rete Dati
Ripostiglio
Tennis
Veranda
Video Citofono
Video Sorveglianza
Zanzariere
Mappa
Pioltello - VIA NORBERTO BOBBIO, 5
Attiva i cookies e ricarica la pagina per visualizzare il contenuto
Planimetrie
Sede di Milano
Viale Andrea Doria, 35
20124 Milano (MI)

Agenti venditori
Rosario	 Sidoti Carrello
Rosario Sidoti Carrello
Visita l'annuncio sul tuo telefono
QR Code
Documenti
Vuoi avere più dettagli?
Cookie preference