BILOCALE COMPLETAMENTE ARREDATO

Pioltello - VIA GABRIELE D'ANNUNZIO, 100
800 €
Codice:API - GAB 100
Caratteristiche principali
45
2
Locali
1
Camere
1
Bagni
Descrizione
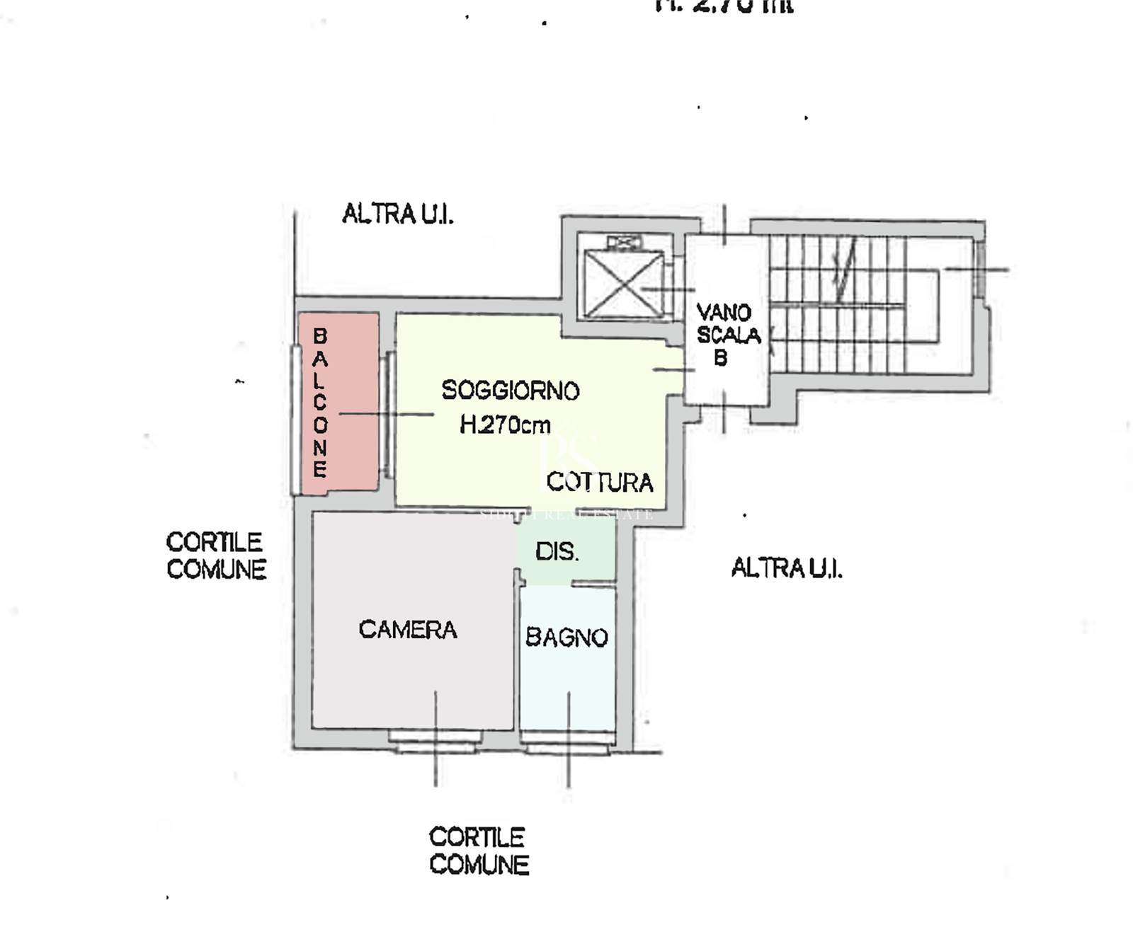
Bilocale in locazione – Via Gabriele D’Annunzio 100, Pioltello Proponiamo in locazione grazioso bilocale completamente arredato, situato al terzo piano di una palazzina dei primi anni 2000 in ottime condizioni, abitata da inquilini referenziati e ben tenuta. L’immobile è composto da ingresso, luminoso soggiorno con cucina a vista, balcone, camera da letto matrimoniale e bagno finestrato con box doccia. Completano la proprietà una cantina, possibilità di box a 100 euro L’appartamento si presenta in buono stato, pronto da abitare, ed è dotato di riscaldamento autonomo, aria condizionata e acqua calda autonoma, garantendo comfort e gestione ottimale dei consumi. La zona è comoda e ben servita, nelle immediate vicinanze della stazione di Limito, con facile collegamento verso Milano e Linate, oltre alla presenza di supermercati, negozi e tutti i principali servizi di prima necessità. Canone di locazione box incluso: € 900/mese Spese condominiali: € 120/mese Si richiedono referenze reddituali dimostrabili e documentazione certificata. Per maggiori informazioni o per fissare una visita, contattaci. Le informazioni, le immagini e le planimetrie sono da intendersi indicative e non costituiscono elemento contrattuale.
Caratteristiche
Codice:
API - GAB 100
Città:
Pioltello
Categoria:
2 locali
Spese condominiali:
1.440 € / anno
Locali:
2
Camere:
1
Bagni:
1
Mq:
45
Mq Box:
16
Mq Balcone:
6
Piano:
3
Prezzo box:
100
Classe energetica:
D
Life Style:
Quiet
Stato Immobile:
Ottimo
Grado:
Medio
Lati Liberi:
2
Arredi:
Arredato
Tipo Soggiorno:
Soggiorno
Tipo Cucina:
A Vista
Riscaldamento:
Autonomo
Raffrescamento:
Split
Infissi:
Legno Doppio Vetro
Pavim. Giorno:
Gres Porcellanato
Pavim. Notte:
Gres Porcellanato
Pavim. Cucina:
Gres Porcellanato
Pavim. Bagno:
Gres Porcellanato
Cauzione:
Tre Mesi
Tipo Contratto:
Transitorio
Accessori
Aria Condizionata
Ascensore
Fibra Ottica
Rete Dati
Mappa
Pioltello - VIA GABRIELE D'ANNUNZIO, 100
Attiva i cookies e ricarica la pagina per visualizzare il contenuto
Planimetrie
Sede di Milano
Viale Andrea Doria, 35
20124 Milano (MI)

Agenti venditori
Rosario	 Sidoti Carrello
Rosario Sidoti Carrello
Visita l'annuncio sul tuo telefono
QR Code
Vuoi avere più dettagli?
Cookie preference