Descrizione
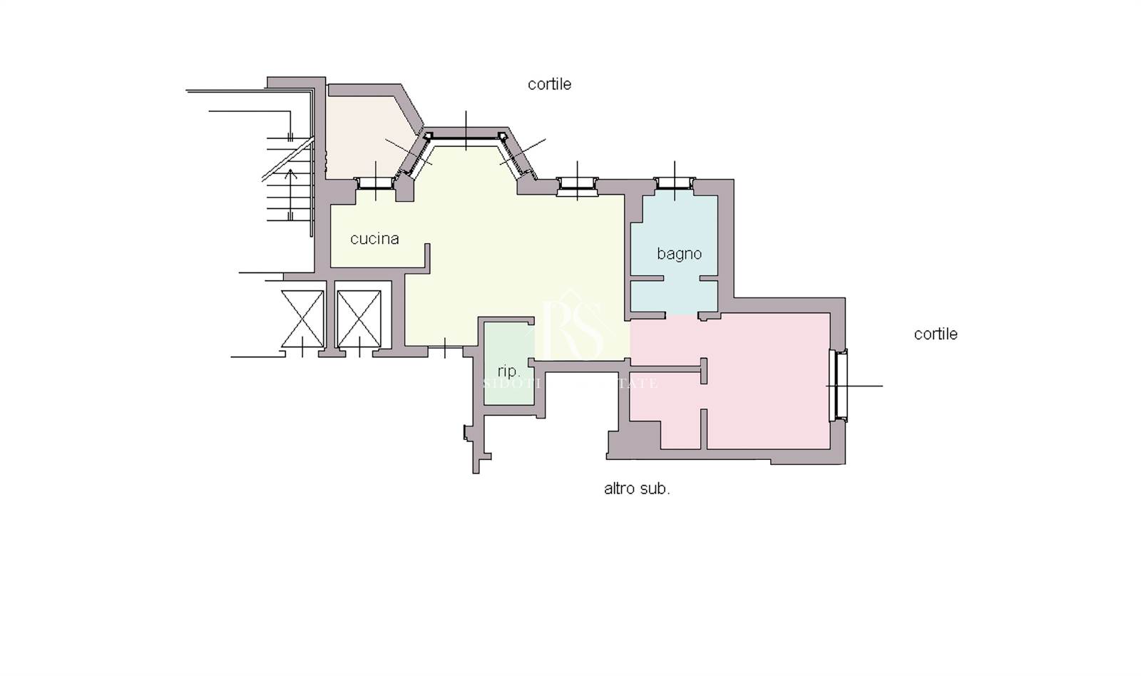
All' Interno del complesso residenziale Malaspina, proponiamo BILOCALE oltre servizi di 77 mq circa, posto al piano quinto. L'immobile è internamente cos' composto: ingresso su soggiorno con cucina separata collegata al terrazzino, disimpegno grande camera e bagno. Completano la proprietà una cantina di pertinenza. L' appartamento è costruito con materiali moderni e di qualità, le soluzioni impiantistiche sono di ultima generazione con dotazioni base di domotica e possibilità di controllo remoto per comandi e invio allarme tramite telefono e PC. All'interno del complesso sporting club ad uso esclusivo dei condomini con servizi quali: piscina, campi sportivi, palestra, sala biliardo e sala relax oltre a bar/ristorante. L' appartamento è costruito con materiali moderni e di qualità con soluzioni impiantistiche di ultima generazione e con dotazioni base di domotica pronte ad accogliere il futuro delle comunicazioni. L'impianto di teleriscaldamento e teleraffrescamento, l'automazione comando luci ed avvolgibili, la rete interna multimediale (dati, fonia, TV via cavo in ogni ambiente), controllo remoto (comandi e invio allarme tramite telefono e PC), il videocitofono digitale, l'impianto TV centralizzato con segnali terrestri e satellitari, l'allarme anti intrusione collegato alla control room della vigilanza, l'allarme antipanico ed il rilevatore fughe gas diventano strumenti di sicurezza e tecnologia al servizio del benessere. Le metrature, la planimetria ed i dati degli immobili quì pubblicati sono del tutto indicativi non costituiscono elemento contrattuale.