Negozio In Vendita a Furnari

Furnari - Prestipaolo, 27
250.000 €
Codice:B0418
Caratteristiche principali
181
1
Locali
3
Bagni
Descrizione
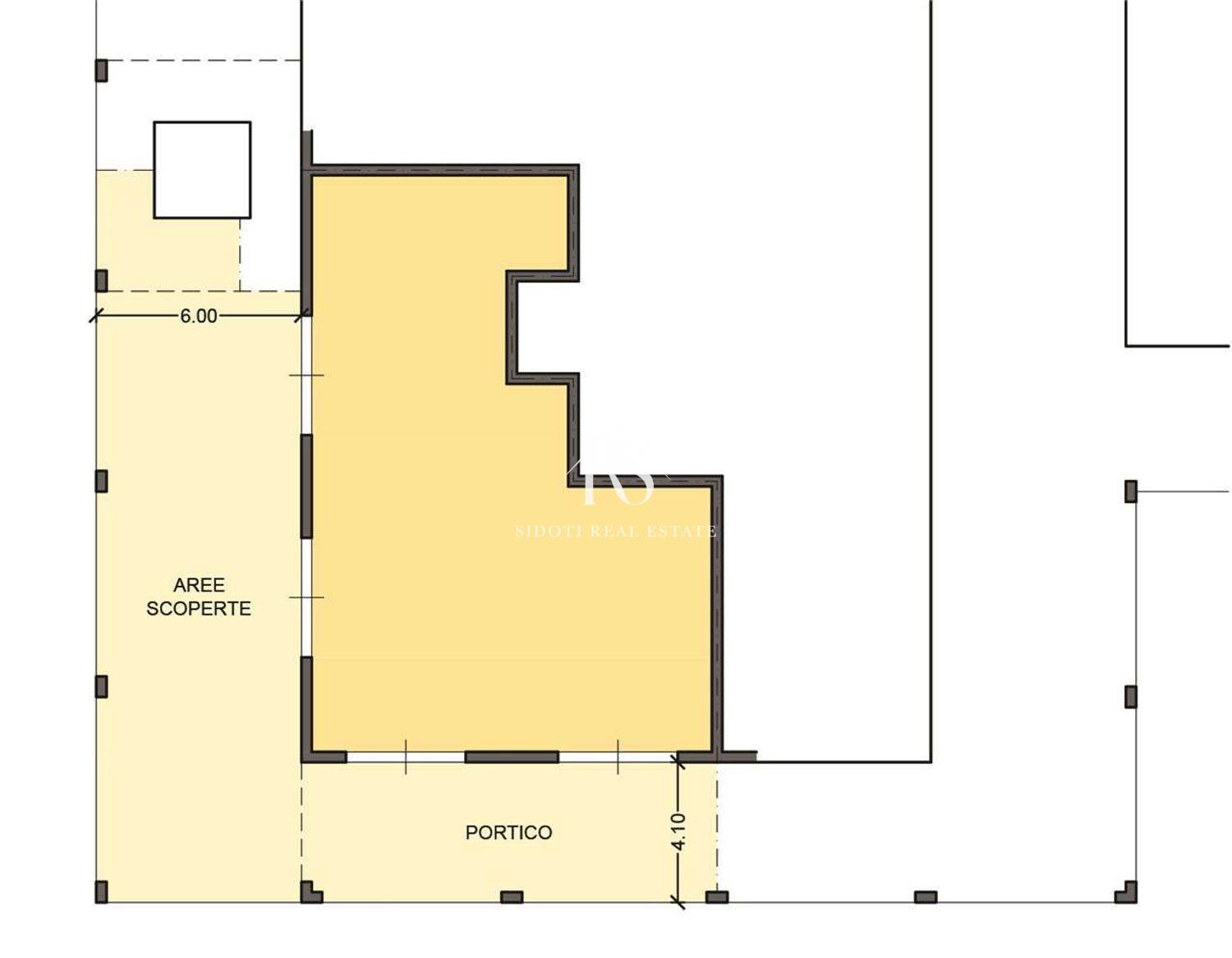
Proponiamo in vendita all'interno del complesso "Portorosa" locale commerciale angolare con quattro vetrine posto al primo terra, della superficie di 165 mq, composto da un vano oltre servizi, con annesso portico e corte scoperta di proprietà esclusiva della superficie complessiva di 167 mq.
Portorosa, località turistica con uno dei più grandi porti turistici della Sicilia, di fronte all'incantevole scenario delle Isole Eolie, offre una vastissima gamma di servizi: supermercato, bar, ristoranti e pizzerie, boutique, bazar, tabacchi, noleggio auto e barche (vela o motore) di varie dimensioni con o senza skipper, quattro residence e un grande albergo. Inoltre, dispone di circa 600 posti barca, con servizi di alaggio, rimessaggio e bunkeraggio ed è un punto di partenza per i più svariati itinerari artistici nelle località più belle della Sicilia (Isole Eolie, Teatro Greco di Tindari, Taormina, Etna).
Le metrature, la planimetria ed i dati degli immobili quì pubblicati sono del tutto indicativi e non potranno essere utilizzati come parte integrante in un eventuale contratto di vendita o di locazione delle proprietà.
La descrizione ha valore puramente indicativa e non costituisce elemento contrattuale.
Caratteristiche
Codice:
B0418
Città:
Furnari
Categoria:
Negozio
Spese condominiali:
3.240 € / anno
Locali:
1
Bagni:
3
Mq:
181
Mq calpestabili:
165
Piano:
Terra
Classe energetica:
D
102,85
Stato Immobile:
Buono
Mappa
Furnari - Prestipaolo, 27
Attiva i cookies e ricarica la pagina per visualizzare il contenuto
Planimetrie
Filiale di Portorosa
Via Prestipaolo 27 - Complesso Portorosa
98054 Furnari (ME)

Visita l'annuncio sul tuo telefono
QR Code
Vuoi avere più dettagli?
Cookie preference