TRILOCALE CON GIARDINO E TAVERNA

Peschiera Borromeo - VIA TRIESTE
420.000 €
Codice:VMI-TERRAZZE
Caratteristiche principali
160
5
Locali
3
Camere
2
Bagni
1
Box auto
Descrizione
Nel rinomato quartiere residenziale di San Bovio, alle porte di Milano, all’interno dell’elegante complesso “Le Terrazze”, proponiamo in vendita una residenza esclusiva con giardino privato e taverna attrezzata IN CLASSE ENGETICA B CHE PERMETTE L'ACCESSO AI NUTUU GREEN
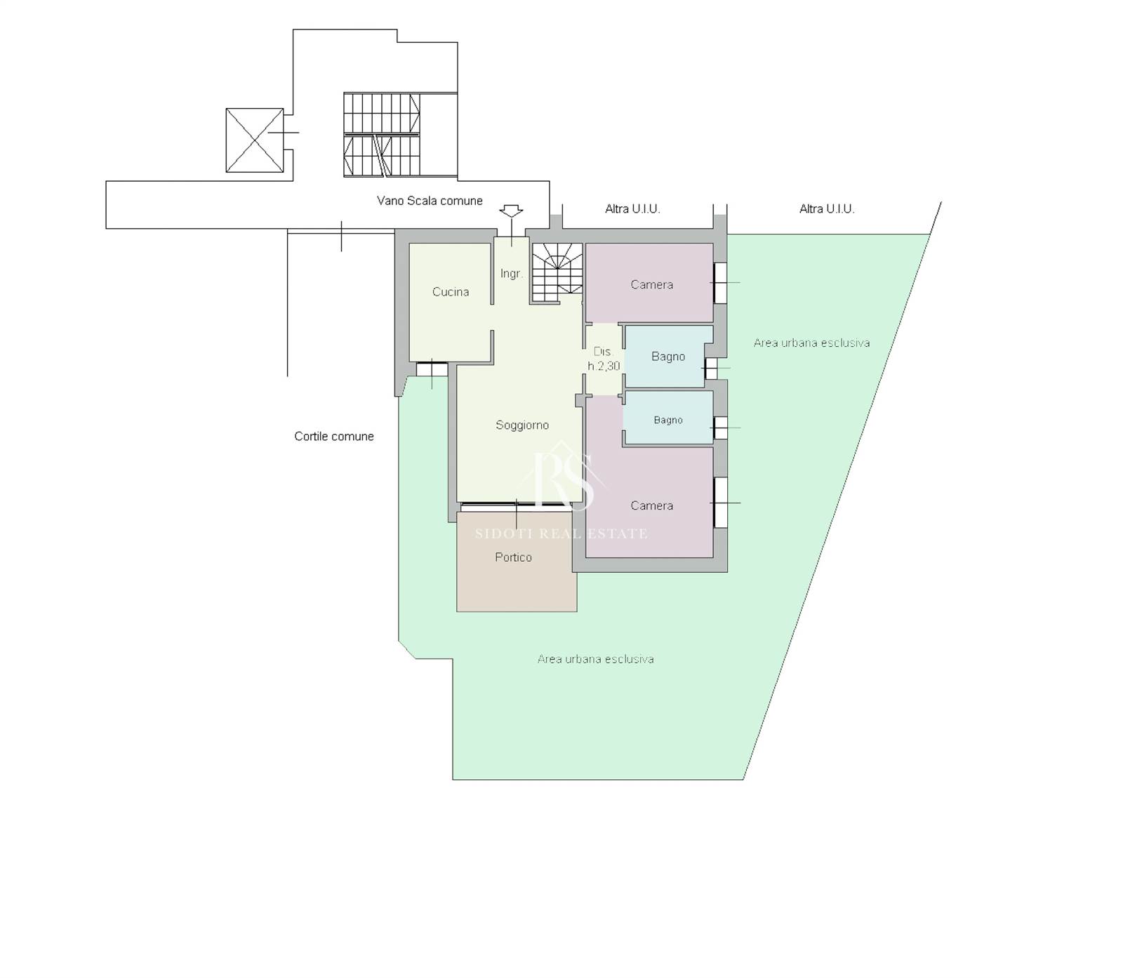
L’immobile, 158 mq commerciali, gode di tripla esposizione Est / Sud / Ovest ed è circondato da un giardino privato di circa 180 mq che abbraccia l’intera abitazione, garantendo massima privacy e una perfetta continuità tra spazi interni ed esterni.
La zona living, luminosa e raffinata, si apre su un portico loggiato ideale per momenti conviviali all’aperto. La cucina abitabile Lube, completamente attrezzata, dispone di accesso diretto al giardino. La zona notte ospita una camera padronale con bagno en-suite finestrato, una seconda camera e un secondo bagno completamente ristrutturato.
Una elegante scala in marmo retroilluminata a LED, nascosta da porta raso muro, conduce alla taverna di circa 50 mq, dove trovano spazio una lavanderia, un’area ripostiglio e una raffinata zona home theatre con pannelli fonoassorbenti.
Caratteristiche di pregio
• Riscaldamento e raffrescamento geotermici a pavimento
• Aria condizionata e inverter caldo/freddo in taverna
• Pavimenti in parquet e grès porcellanato
• Infissi in PVC con doppio vetro antisfondamento
• Tapparelle elettriche e zanzariere incassate
• Impianto di allarme perimetrale e volumetrico
Una soluzione di ottimo livello, ideale per chi desidera vivere nel verde, con spazi esterni importanti e comfort moderni, a pochi minuti da Milano
Richiesta appartamento 420.000,00 euro - box 15.000,00 euro - posto auto 7.000,00 euro
le metrature, la planimetria ed i dati degli immobili qui pubblicati sono del tutto indicativi e non potranno essere utilizzati come parte integrante in un eventuale contratto di vendita o di locazione delle proprietà. La descrizione ha valore puramente indicativa e non costituisce elemento contrattuale.
Caratteristiche
Codice:
VMI-TERRAZZE
Città:
Peschiera Borromeo
Categoria:
Appartamento
Spese condominiali:
3.600 € / anno
Locali:
5
Camere:
3
Bagni:
2
Mq:
160
Box auto:
1
Posti auto:
1
Mq Giardino:
160
Piano:
Terra
Classe energetica:
B
Stato Immobile:
Nuovo
Grado:
Signorile
Lati Liberi:
2
Giardino:
Privato
Tipo Soggiorno:
Soggiorno
Tipo Cucina:
Abitabile
Tipo Impianto:
Pavimento
Raffrescamento:
Pavimento
Infissi:
PVC Doppio Vetro
Pavim. Giorno:
Parquet
Pavim. Notte:
Parquet
Pavim. Cucina:
Parquet
Pavim. Bagno:
Gres Porcellanato
Accessori
Antifurto
Aria Condizionata
Armadio a Muro
Doppi Vetri
Geotermia
Impianto Domotica
Impianto Satellitare
Lavanderia
Porta Blindata
Rete Dati
Ripostiglio
Veranda
Zanzariere
Mappa
Peschiera Borromeo - VIA TRIESTE
Attiva i cookies e ricarica la pagina per visualizzare il contenuto
Planimetrie
Sede di Milano
Viale Andrea Doria, 35
20124 Milano (MI)

Agenti venditori
Rosario	 Sidoti Carrello
Rosario Sidoti Carrello
Visita l'annuncio sul tuo telefono
QR Code
Vuoi avere più dettagli?
Cookie preference