LOCALE COMMERCIALE

Furnari (Portorosa) - Via Prestipaolo 27 - Lotto 3/B - Centro Commerciale
85.000 €
Codice:B0422
Caratteristiche principali
74
1
Locali
1
Bagni
Descrizione
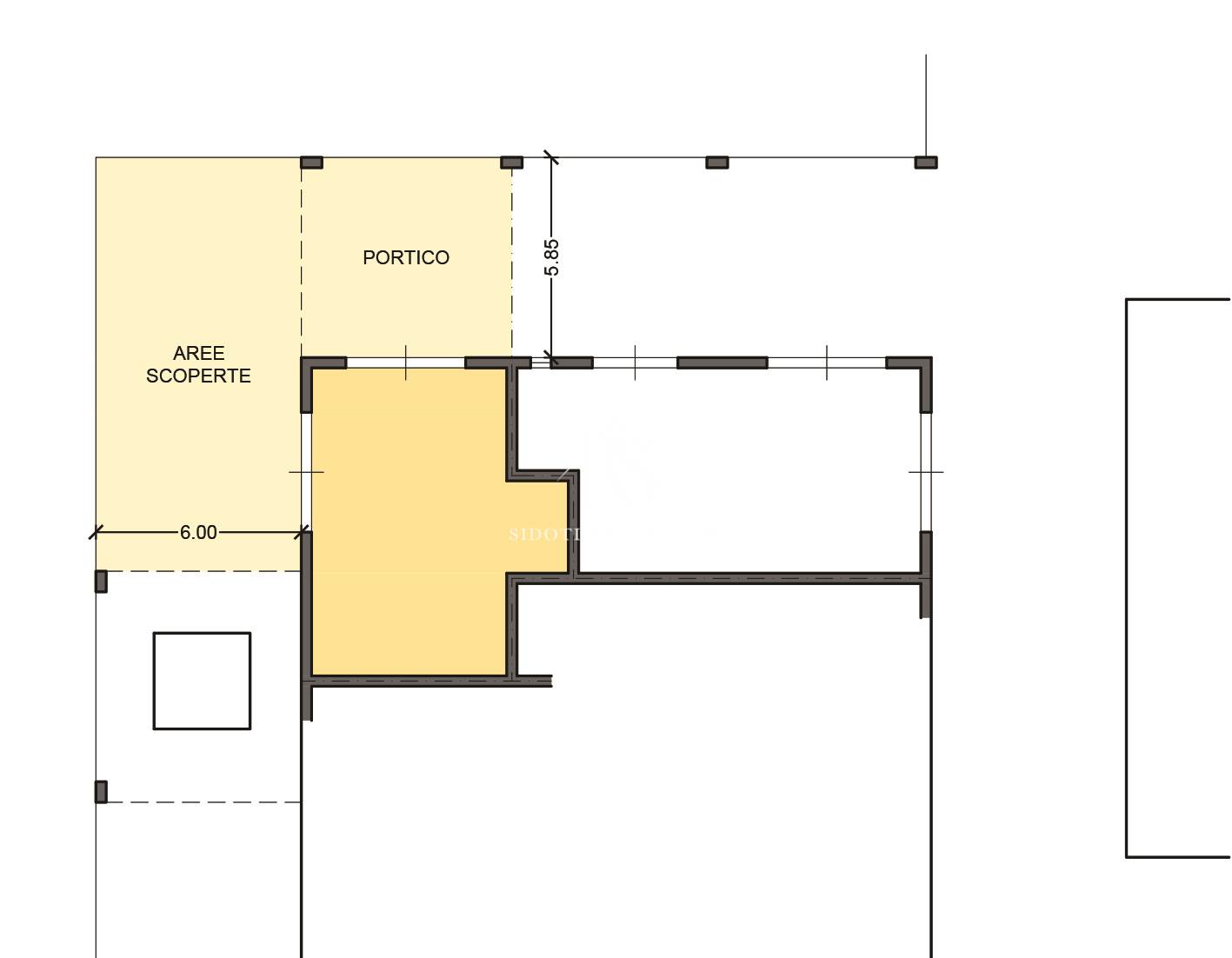
Proponiamo in vendita all'interno del complesso "Portorosa" locale commerciale angolare con due vetrine posto al primo terra, della superficie di 62 mq, composto da un vano oltre servizio e soppalco, con annesso portico e corte scoperta di proprietà esclusiva della superficie complessiva di 122 mq.
Possibilità di un posto auto scoperto di proprietà esclusiva.
Portorosa, località turistica con uno dei più grandi porti turistici della Sicilia, di fronte all'incantevole scenario delle Isole Eolie, offre una vastissima gamma di servizi: supermercato, bar, ristoranti e pizzerie, boutique, bazar, tabacchi, noleggio auto e barche (vela o motore) di varie dimensioni con o senza skipper, quattro residence e un grande albergo. Inoltre, dispone di circa 600 posti barca, con servizi di alaggio, rimessaggio e bunkeraggio ed è un punto di partenza per i più svariati itinerari artistici nelle località più belle della Sicilia (Isole Eolie, Teatro Greco di Tindari, Taormina, Etna).
Le metrature, la planimetria ed i dati degli immobili quì pubblicati sono del tutto indicativi e non potranno essere utilizzati come parte integrante in un eventuale contratto di vendita o di locazione delle proprietà.
La descrizione ha valore puramente indicativa e non costituisce elemento contrattuale.
Caratteristiche
Codice:
B0422
Città:
Furnari (Portorosa)
Categoria:
Negozio
Spese condominiali:
90 € / anno
Locali:
1
Bagni:
1
Mq:
74
Mq calpestabili:
62
Piano:
Terra
Livelli:
1
Anno:
1985
Prezzo posto auto:
10000
Classe energetica:
D
65,86 kWh/m²a
Stato Immobile:
Buono
Grado:
Medio
Lati Liberi:
2
Numero Vetrine:
Due
Accessori
Portineria/Custode
Mappa
Furnari (Portorosa) - Via Prestipaolo 27 - Lotto 3/B - Centro Commerciale
Attiva i cookies e ricarica la pagina per visualizzare il contenuto
Planimetrie
Filiale di Portorosa
Via Prestipaolo 27 - Complesso Portorosa
98054 Furnari (ME)

Agenti venditori
Domenico Sidoti Carrello
Domenico Sidoti Carrello
Visita l'annuncio sul tuo telefono
QR Code
Vuoi avere più dettagli?
Cookie preference